Skip To Content

638 Golden Raintree Place

Brandon, FL 33510
  • $149,900
  • STATUS: Active
  • ON SITE: 105 Days
  • MLS #: TB8418876
UPDATED: 44 min ago
$149,900
  • 2
    BEDS
  • N/A
    ACRES
  • 2
    BATHS
  • 0
    1/2 BATHS
  • 918
    SQFT
  • $163
    $/SQFT
Type:
Condo
Built:
1985
County:
Area:

School Information

Elementary School:
Middle School:
High School:

Description

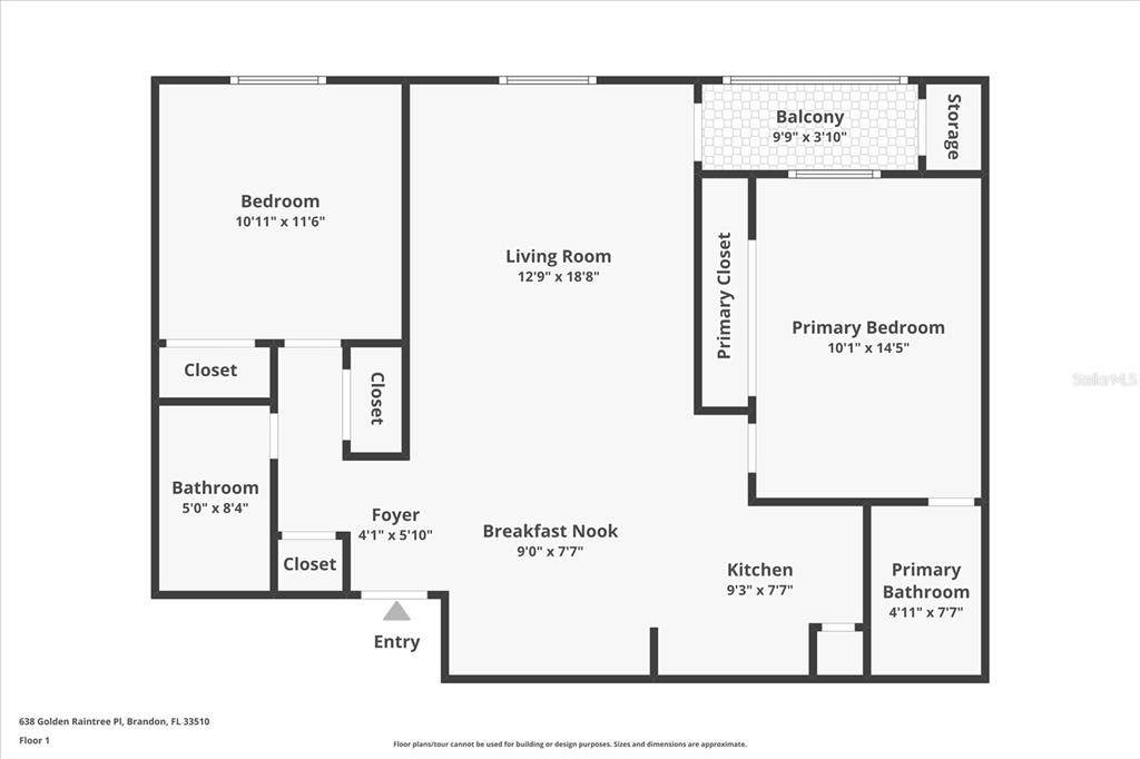
One or more photo(s) has been virtually staged. This centrally located 2 bedroom, 2 bathroom condo in Brandon presents an excellent opportunity for both first-time buyers and savvy investors. Inside, you'll find a functional floor plan with a spacious living area, private primary suite, and plenty of storage. The low-maintenance design allows for stress-free living, while the community setting adds convenience and peace of mind. For investors, this property offers great rental potential thanks to its unbeatable proximity to shopping centers, restaurants, and major highways connecting to Tampa. First-time buyers will appreciate the affordable price point and the chance to build equity instead of renting. Whether your goal is a personal residence or income-producing property, this condo is ready to deliver.

Monthly Payment Calculator




© 2025 My Florida Regional MLS DBA Stellar MLS. All rights reserved. All listings displayed pursuant to IDX. All listing information is deemed reliable but not guaranteed and should be independently verified through personal inspection by appropriate professionals. Listings displayed on this website may be subject to prior sale or removal from sale; availability of any listing should always be independently verified. Listing information is provided for consumers personal, non-commercial use, solely to identify potential properties for potential purchase; all other use is strictly prohibited and may violate relevant federal and state law. Data last updated 2025-12-06T14:47:06.277.
www.thecamachoteam.com/homes/167234680
Print Image

638 Golden Raintree Place Brandon, FL 33510

  • Price: $149,900
  • Status: Active
  • On Site: 105 Days
  • Updated: 44 min ago
  • MLS #: TB8418876
2
Beds
2
Baths
0
½ Baths
N/A
Acres
918
SQFT
$163
$/SQFT
1985
Built
Neighborhood:
The Hamptons At Brandon A Condo
County:
Hillsborough
Area:
Brandon
Elementary School:
Limona-Hb
Middle School:
Mann-HB
High School:
Brandon-HB
Property Description
One or more photo(s) has been virtually staged. This centrally located 2 bedroom, 2 bathroom condo in Brandon presents an excellent opportunity for both first-time buyers and savvy investors. Inside, you'll find a functional floor plan with a spacious living area, private primary suite, and plenty of storage. The low-maintenance design allows for stress-free living, while the community setting adds convenience and peace of mind. For investors, this property offers great rental potential thanks to its unbeatable proximity to shopping centers, restaurants, and major highways connecting to Tampa. First-time buyers will appreciate the affordable price point and the chance to build equity instead of renting. Whether your goal is a personal residence or income-producing property, this condo is ready to deliver.
Exterior Features

Carport Yn No Construction Materials Wood Frame Direction Faces East Exterior Features Sidewalk Foundation Details Block Pool Private Yn No Road Surface Type Asphalt Roof Shingle Water Access Yn No Water Extras Yn No Water View Yn No Waterfront Feet Total 0 Waterfront Yn No

Interior Features

Appliances DishwasherMicrowaveRangeRefrigerator Building Area Total 990 Building Elevator Yn No Cooling Central Air Cooling YN Yes Fireplace Yn No Flooring Tile Heating Central Heating YN Yes Interior Features Ceiling Fan(s)Open Floorplan Laundry Features Other Levels One Sewer Public Sewer Stories Total 1 Water Source Public

Property Features

Additional Lease Restrictions buyer to verify all info with hoa Approval Process buyer to verify all info with hoa Association Approval Required Yn No Association Fee 380 Association Fee Frequency Monthly Association Fee Includes Maintenance StructureMaintenance Grounds Association Fee Monthly Amount 380 Association Fee Requirement Required Association Montly Maint Amt Add To Hoa 0 Association Yn Yes Building Name Number NA Cdd Yn No Community Features Fitness CenterPoolTennis Court(s) Condo Land Included Yn No Down Payment Resource Yes Flood Zone Code x Floor Number 2 Garage Yn No Homestead Yn No Lease Considered YN Yes Lease Restrictions YN No Listing Terms CashConventionalFHAVA Loan Minimum Lease No Minimum New Construction Yn No Ownership Fee Simple Pet Restrictions buyer to verify all info with hoa Pets Allowed Cats OKYes Property Sub Type Condominium Required Remarks One or more photo(s) has been virtually staged. Senior Community Yn No Special Listing Conditions None Tax Annual Amount 1529.67 Total Annual Fees 4560 Total Monthly Fees 380 Utilities Public Yrs Of Owner Prior To Leasing Re No Zoning RMC-16


Listing information © 2025 My Florida Regional MLS DBA Stellar MLS..
Listing provided courtesy of KELLER WILLIAMS SUBURBAN TAMPA: 813-684-9500.



© 2025 My Florida Regional MLS DBA Stellar MLS. All rights reserved. All listings displayed pursuant to IDX. All listing information is deemed reliable but not guaranteed and should be independently verified through personal inspection by appropriate professionals. Listings displayed on this website may be subject to prior sale or removal from sale; availability of any listing should always be independently verified. Listing information is provided for consumers personal, non-commercial use, solely to identify potential properties for potential purchase; all other use is strictly prohibited and may violate relevant federal and state law. Data last updated 2025-12-06T14:47:06.277.
 
https://bt-photos.global.ssl.fastly.net/mfr/orig_boomver_1_TB8418876-2.jpg https://bt-photos.global.ssl.fastly.net/mfr/orig_boomver_1_TB8418876-2.jpg https://bt-photos.global.ssl.fastly.net/mfr/orig_boomver_1_TB8418876-2.jpg
Logo
TCT Realty Group LLC
1601 SW College Rd
Ocala FL, 34471